“泉水湾”售楼中心室内装修图片(11)张
猫扑风铃上传
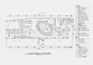
项目的目标客户群锁定为年轻人,就此设计师给售楼中心穿上很酷的深色的“衣服”。大厅天棚漫天的光纤灯头幻化成深邃的银河。镜面不锈钢制作的灯架是流星的轨道,黑色的大理石地面反射着天棚的星空,我们置身在浩瀚的宇宙中。银色镜片装饰的圆形VIP洽谈区就是银河中的太空仓。VIP区悬挑出2米长的洽谈桌在灯光的衬托下营造出漂浮感。
所属小分类:
相关图集
热门小分类
猫扑风铃上传
项目的目标客户群锁定为年轻人,就此设计师给售楼中心穿上很酷的深色的“衣服”。大厅天棚漫天的光纤灯头幻化成深邃的银河。镜面不锈钢制作的灯架是流星的轨道,黑色的大理石地面反射着天棚的星空,我们置身在浩瀚的宇宙中。银色镜片装饰的圆形VIP洽谈区就是银河中的太空仓。VIP区悬挑出2米长的洽谈桌在灯光的衬托下营造出漂浮感。